淡水公寓法拍

淡水公寓法拍|淡水區新生街公寓四樓增建26坪近捷運淡水站淡水老街

淡水區新生街|公寓四樓增建26坪|近捷運淡水站、淡水老街
列印
  • 售553萬
    1. 案號:113貴87033 115/04/09(四)14:30
    2. 類型:法拍公寓
    3. 總登記坪數:
    4. 每坪單價:
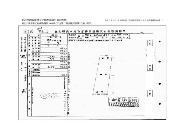
    5. 地址:新北市淡水區新生街90巷12號4樓
    1. (煩請告知聯絡人,您是在House-Info房屋網看到廣告,感恩幫忙)
    2. 0911-965-339
    1. 公司名稱:
    2. 公司地址:
    淡水區新生街|公寓四樓增建26坪|近捷運淡水站、淡水老街-QR CODE 我要留言
物件介紹
詳細資料
銷售狀態
待標中
格局
0房
屋齡
49年
車位
沒車位
無障礙環境
沒有
所在樓層
4樓/共4樓
管委會
沒有
中庭
沒有
電梯
沒有
邊間
不是
法拍屋
拍次
第1拍 不點交
開標日期
2026/04/09(四)14:30
瀏覽人次
11人次
周邊環境
鄰近地標
近捷運淡水站、淡水老街、淡江大學、淡水國小、淡水高中
捷運站
淡水
坪數說明
建物登記總坪數
26.26
主建物
23.39
附屬建物
2.87
增建
26.21
土地登記總坪數
8.99
特色描述

【法院筆錄內容】

1‧485、暫編1939建號建物拍定後不點交。319地號土地拍賣不動產應有部分,拍定後不點交。
2‧114年3月12日現場查封、測量時,在場第三人陳小姐稱,債務人不住在這裡(即485建號建物),債務人為其前夫及兒子,債務人欠她錢所以住這裡,只要債務人還錢就搬走。陳小姐稱屋內有漏水,客廳後陽台天花板有鋼筋外露。暫編1939建號建物為鐵架、木板及石棉瓦搭蓋,裡面堆放雜物。114年7月11日新北市政府違章建築拆除大隊函覆,暫編1939建號建物,已有違章建築認定紀錄。惟現在實際情形如何,仍請應買人自行查明注意。
3‧暫編1939建號建物為未辦保存登記,拍定人不得持權利移轉證書辦理保存登記。且本件拍賣以建物現況拍賣,當事人及拍定人均不得以面積不符,請求增減價金。
4‧暫編1939建號建物有獨立之出入口,與485建號建物內部不相通。
5‧投標人應自行查明債務人有無積欠管理費,並注意拍定後民法第826條之1第3項規定之適用問題。
《清償票款》

【保證金】

【拍賣履歴】
 一拍    2026/04/09 底標價格  553萬
 二拍                      底標價格  442.4萬
 三拍                      底標價格  353.92萬
 四拍                      底標價格  283.14萬                

【焦點法拍履歴】
👩🏻‍⚖️從業二十年以上經驗|競競業業|正派經營
🎯投標準備⇥法拍流程說明|標單填寫|案件現場勘查有無特殊情事|成本評估分析
💰銀行貸款⇥法拍物件估價|投標人財力評估|銀行代墊款協助辦理|最高八成
🏡拍定得標⇥強制執行書狀、履勘陳報書狀往返|債務人搬遷協商|遺留物造冊查估
🎁委託代標⇥免費|委託代標未得標⇥免費

🏢鑫創資產管理有限公司

顏麗杏 0911-965339   營業員證號:(101)登字第212862號     
連真甄 0909-031993   營業員證號:(101)登字第192002號   

更多物件 ☞ 焦點法拍 

經紀人李彥槿:109北市經證字第02110號

新北淡水法拍公寓-0
新北淡水法拍公寓-0
新北淡水法拍公寓-1
新北淡水法拍公寓-1
新北淡水法拍公寓-2
新北淡水法拍公寓-2
新北淡水法拍公寓-3
新北淡水法拍公寓-3
新北淡水法拍公寓-4
新北淡水法拍公寓-4
新北淡水法拍公寓-5
新北淡水法拍公寓-5
新北淡水法拍公寓-6
新北淡水法拍公寓-6
新北淡水法拍公寓-7
新北淡水法拍公寓-7
新北淡水法拍公寓-8
新北淡水法拍公寓-8
物件留言
請注意,如果您詢問的內容與物件不相符合或是廣告,經過審核,系統將會直接刪除您的發問內容
等待圖示
相似物件
免責聲明:House-Info房屋網平台系統為租用式開放房屋買賣網站建置平台,僅提供會員查詢-新北市,淡水區,公寓-等房屋資訊參考,並不涉入任何諮詢、交易。 物件(服務)聯絡人公佈的資訊、文字、照片、圖形、產權、廣告內容、或其他資料若有不實或違法情事,或與客戶聯絡交易過程中若衍生民事或刑事等法律問題,皆與House-Info房屋網站無關,所有商標、文章、名稱等版權,皆歸屬原著作者所有!