淡水區公寓法拍

淡水區公寓法拍|淡水區學府路公寓四樓近輕軌淡江大學站淡江大學生活圈

淡水區學府路|公寓四樓|近輕軌淡江大學站、淡江大學生活圈
列印
  • 售705萬
    1. 案號:114吉95660 115/04/22(三)14:30
    2. 類型:法拍公寓
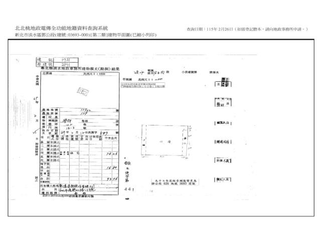
    3. 總登記坪數:
    4. 每坪單價:
    5. 地址:新北市淡水區學府路102巷13號4樓
    1. (煩請告知聯絡人,您是在House-Info房屋網看到廣告,感恩幫忙)
    2. 0911-965-339
    1. 公司名稱:
    2. 公司地址:
    淡水區學府路|公寓四樓|近輕軌淡江大學站、淡江大學生活圈-QR CODE 我要留言
物件介紹
詳細資料
銷售狀態
待標中
格局
0房
屋齡
46年
車位
沒車位
無障礙環境
沒有
所在樓層
4樓/共4樓
管委會
沒有
中庭
沒有
電梯
沒有
邊間
法拍屋
拍次
第1拍 點交
開標日期
2026/04/22(三)14:30
瀏覽人次
6人次
周邊環境
鄰近地標
近輕軌淡江大學站、淡江大學生活圈、淡水老街、淡水馬偕醫院
捷運站
淡江大學
坪數說明
建物登記總坪數
28.15
主建物
23.07
附屬建物
5.08
土地登記總坪數
9.79
特色描述

【法院筆錄內容】

1‧3693建號拍定後點交。

2‧民國114年11月5日現場查封時,債務人在場稱房屋目前無人居住使用,曾因水塔故障漏水導致有壁癌情形,現水塔已修復不會漏水。依強制執行法第113條準用第69條之規定,拍賣物買受人就物之瑕疵無擔保請求權,不得於拍定後主張,請應買人留意。惟現在實際情形如何,仍請應買人自行查明注意。

3‧投標人應自行查明債務人有無積欠管理費,並注意拍定後民法第826條之1第3項規定之適用問題。

《拍賣抵押物》

【保證金】
141萬

【拍賣履歴】
 一拍    2026/04/22 底標價格  705萬
 二拍                       底標價格  564萬
 三拍                       底標價格  451.2萬
 四拍                       底標價格  361萬                

【焦點法拍履歴】
👩🏻‍⚖️從業二十年以上經驗|競競業業|正派經營
🎯投標準備⇥法拍流程說明|標單填寫|案件現場勘查有無特殊情事|成本評估分析
💰銀行貸款⇥法拍物件估價|投標人財力評估|銀行代墊款協助辦理|最高八成
🏡拍定得標⇥強制執行書狀、履勘陳報書狀往返|債務人搬遷協商|遺留物造冊查估
🎁委託代標⇥免費|委託代標未得標⇥免費

🏢鑫創資產管理有限公司

顏麗杏 0911-965339   營業員證號:(101)登字第212862號     
連真甄 0909-031993   營業員證號:(101)登字第192002號   

更多物件 ☞ 焦點法拍 

經紀人李彥槿:109北市經證字第02110號

淡水法拍公寓-0
淡水法拍公寓-0
淡水法拍公寓-1
淡水法拍公寓-1
淡水法拍公寓-2
淡水法拍公寓-2
淡水法拍公寓-3
淡水法拍公寓-3
淡水法拍公寓-4
淡水法拍公寓-4
淡水法拍公寓-5
淡水法拍公寓-5
淡水法拍公寓-6
淡水法拍公寓-6
物件留言
請注意,如果您詢問的內容與物件不相符合或是廣告,經過審核,系統將會直接刪除您的發問內容
等待圖示
相似物件
免責聲明:House-Info房屋網平台系統為租用式開放房屋買賣網站建置平台,僅提供會員查詢-新北市,淡水區,公寓-等房屋資訊參考,並不涉入任何諮詢、交易。 物件(服務)聯絡人公佈的資訊、文字、照片、圖形、產權、廣告內容、或其他資料若有不實或違法情事,或與客戶聯絡交易過程中若衍生民事或刑事等法律問題,皆與House-Info房屋網站無關,所有商標、文章、名稱等版權,皆歸屬原著作者所有!