台北市南港區公寓法拍

台北市南港區公寓法拍|南港區東新街公寓二樓松山車站南港運動中心

南港區 東新街 公寓二樓 松山車站 南港運動中心
列印
  • 售1487萬
    1. 案號:114勇85762 115/04/09(四) 14:30
    2. 類型:法拍公寓
    3. 總登記坪數:
    4. 每坪單價:
    5. 地址:台北市南港區東新街8-5號2樓
    1. (煩請告知聯絡人,您是在House-Info房屋網看到廣告,感恩幫忙)
    2. 0911-965-339
    1. 公司名稱:
    2. 公司地址:
    南港區 東新街 公寓二樓 松山車站 南港運動中心-QR CODE 我要留言
物件介紹
詳細資料
銷售狀態
待標中
格局
0房
屋齡
46年
車位
沒車位
無障礙環境
沒有
所在樓層
2樓/共5樓
管委會
沒有
中庭
沒有
電梯
沒有
是否凶宅
不是
法拍屋
拍次
第一拍 部份點交
開標日期
2026/04/09(四) 14:30
瀏覽人次
17人次
周邊環境
捷運站
松山
坪數說明
建物登記總坪數
27.52
主建物
25.11
附屬建物
2.41
特色描述

【法院筆錄內容】

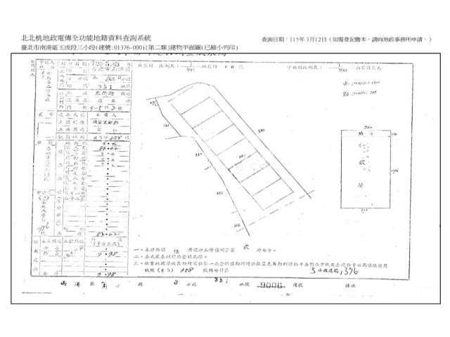
1‧1376建號建物拍定後點交。351地號土地拍賣不動產應有部分,拍定後不點交。

2‧114年9月22日現場查封時,1376建號建物,債務人在場稱由其本人及家屬作為倉庫使用。惟現在實際情形如何,仍請應買人自行查明注意。

3‧投標人應自行查明債務人有無積欠管理費,並注意拍定後民法第826條之1第3項規定之適用問題。

《拍賣抵押物》

【保證金】
297.4萬

【拍賣履歴】
 一拍    2026/04/09     底標價格  1487萬
 二拍                           底標價格  1189.6萬       
 三拍                           底標價格  951.7萬
 四拍                           底標價格  761.4萬                

【焦點法拍履歴】
👩🏻‍⚖️從業二十年以上經驗|競競業業|正派經營
🎯投標準備⇥法拍流程說明|標單填寫|案件現場勘查有無特殊情事|成本評估分析
💰銀行貸款⇥法拍物件估價|投標人財力評估|銀行代墊款協助辦理|最高八成
🏡拍定得標⇥強制執行書狀、履勘陳報書狀往返|債務人搬遷協商|遺留物造冊查估
🎁委託代標⇥免費|委託代標未得標⇥免費

🏢鑫創資產管理有限公司

顏麗杏 0911-965339   營業員證號:(101)登字第212862號     
連真甄 0909-031993   營業員證號:(101)登字第192002號   

更多物件 ☞ 焦點法拍 

經紀人李彥槿:109北市經證字第02110號

台北南港公寓法拍-0
台北南港公寓法拍-0
台北南港公寓法拍-1
台北南港公寓法拍-1
台北南港公寓法拍-2
台北南港公寓法拍-2
台北南港公寓法拍-3
台北南港公寓法拍-3
台北南港公寓法拍-4
台北南港公寓法拍-4
台北南港公寓法拍-5
台北南港公寓法拍-5
台北南港公寓法拍-6
台北南港公寓法拍-6
台北南港公寓法拍-7
台北南港公寓法拍-7
物件留言
請注意,如果您詢問的內容與物件不相符合或是廣告,經過審核,系統將會直接刪除您的發問內容
等待圖示
相似物件
免責聲明:House-Info房屋網平台系統為租用式開放房屋買賣網站建置平台,僅提供會員查詢-台北市,南港區,公寓-等房屋資訊參考,並不涉入任何諮詢、交易。 物件(服務)聯絡人公佈的資訊、文字、照片、圖形、產權、廣告內容、或其他資料若有不實或違法情事,或與客戶聯絡交易過程中若衍生民事或刑事等法律問題,皆與House-Info房屋網站無關,所有商標、文章、名稱等版權,皆歸屬原著作者所有!