新莊區公寓法拍

新莊區公寓法拍|新莊區瓊林南路公寓四樓近樹林秀泰影城興仁夜市河濱公園

新莊區瓊林南路|公寓四樓|近樹林秀泰影城、興仁夜市、河濱公園
列印
  • 售1999萬8000元
    1. 案號:115職四18金 115/02/25(三)10:30流標
    2. 類型:法拍公寓
    3. 總登記坪數:
    4. 每坪單價:
    5. 地址:新北市新莊區瓊林南路305巷3號4樓
    1. (煩請告知聯絡人,您是在House-Info房屋網看到廣告,感恩幫忙)
    2. 0911-965-339
    1. 公司名稱:
    2. 公司地址:
    新莊區瓊林南路|公寓四樓|近樹林秀泰影城、興仁夜市、河濱公園-QR CODE 我要留言
物件介紹
詳細資料
銷售狀態
議價中
格局
0房
屋齡
35年
車位
沒車位
無障礙環境
沒有
所在樓層
4樓/共5樓
管委會
沒有
中庭
沒有
電梯
沒有
邊間
不是
法拍屋
拍次
第一拍 點交
開標日期
2026/02/25(三)10:30流標
瀏覽人次
2人次
周邊環境
鄰近地標
近樹林秀泰影城、興仁花園夜市、監理所、河濱公園
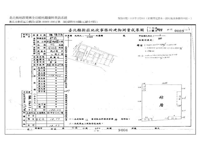
坪數說明
建物登記總坪數
65.45
主建物
46.59
附屬建物
5.60
公共設施
13.26
土地登記總坪數
14.39
特色描述

【法院筆錄內容】

1‧拍賣標的由債務人及其家屬自住,拍定後應予點交。

2‧另鑑定報告勘查並未入室,無法得之勘估標的內部是否有嚴重漏水、地震受創或火災受損等事宜,僅以外觀現況判斷。又查詢公開資訊網站,現未查得本建物有海砂屋、輻射屋、地震受創、非自然死亡之列管足以影響交易之特殊情事,實際情形仍請投標人至現場自行查明注意。

3‧投標人應自行查明債務人有無積欠工程受益費、水電瓦斯費、管理費、公共基金等,應依公寓大廈管理條例第24條規定辦理,並注意拍定後民法第799之1條第4項規定之適用間題。

4‧本件如有停止、撤回、撤銷、延緩執行、足額清償等事由,且該事由確實發生於本案拍定前,縱已宣布拍定,法院亦得撤銷拍定,無息返還已繳交之款項,當事人均不得異議,不同意者,請勿參與投標應買。

5‧刊登於網站或其他公告處所之公告內容如與法院公告欄張貼之公告內容不符時,一律以法院公告欄張貼之拍賣公告內容為準。

6‧拍賣之不動產如於查封後經地政機關實施重測,其面積應以重測結果(地籍圖)為準,拍定後債權人、債務人、拍定人或其他關係人均不得以面積增減請求增減價金或聲請撤銷拍賣。

《新北地方法院案號:114年度司執壽字第105859號,清償債務》

【保證金】
399.96萬

【拍賣履歴】
 一拍    2026/02/25 流標 底標價格  1999.8萬
 二拍                              底標價格  1599.8萬
 三拍                              底標價格  1279.8萬
 四拍                              底標價格  1023.8萬                

【焦點法拍履歴】
👩🏻‍⚖️從業二十年以上經驗|競競業業|正派經營
🎯投標準備⇥法拍流程說明|標單填寫|案件現場勘查有無特殊情事|成本評估分析
💰銀行貸款⇥法拍物件估價|投標人財力評估|銀行代墊款協助辦理|最高八成
🏡拍定得標⇥強制執行書狀、履勘陳報書狀往返|債務人搬遷協商|遺留物造冊查估
🎁委託代標⇥免費|委託代標未得標⇥免費

🏢鑫創資產管理有限公司

顏麗杏 0911-965339   營業員證號:(101)登字第212862號     
連真甄 0909-031993   營業員證號:(101)登字第192002號   

更多物件 ☞ 焦點法拍 

經紀人李彥槿:109北市經證字第02110號

新北新莊法拍公寓-0
新北新莊法拍公寓-0
新北新莊法拍公寓-1
新北新莊法拍公寓-1
新北新莊法拍公寓-2
新北新莊法拍公寓-2
新北新莊法拍公寓-3
新北新莊法拍公寓-3
新北新莊法拍公寓-4
新北新莊法拍公寓-4
新北新莊法拍公寓-5
新北新莊法拍公寓-5
新北新莊法拍公寓-6
新北新莊法拍公寓-6
新北新莊法拍公寓-7
新北新莊法拍公寓-7
新北新莊法拍公寓-8
新北新莊法拍公寓-8
新北新莊法拍公寓-9
新北新莊法拍公寓-9
新北新莊法拍公寓-10
新北新莊法拍公寓-10
新北新莊法拍公寓-11
新北新莊法拍公寓-11
物件留言
請注意,如果您詢問的內容與物件不相符合或是廣告,經過審核,系統將會直接刪除您的發問內容
等待圖示
相似物件
免責聲明:House-Info房屋網平台系統為租用式開放房屋買賣網站建置平台,僅提供會員查詢-新北市,新莊區,公寓-等房屋資訊參考,並不涉入任何諮詢、交易。 物件(服務)聯絡人公佈的資訊、文字、照片、圖形、產權、廣告內容、或其他資料若有不實或違法情事,或與客戶聯絡交易過程中若衍生民事或刑事等法律問題,皆與House-Info房屋網站無關,所有商標、文章、名稱等版權,皆歸屬原著作者所有!