台北大安區大樓法拍

台北大安區大樓法拍|大安區新生南路三段星雲大廈師大台大龍門金華國中大安森林公園

新生南路三段 【星雲大廈】師大台大 龍門金華國中 大安公園
列印
  • 售4695萬
    1. 案號:113廉471法 115/03/03(二) 14:30
    2. 類型:法拍大樓
    3. 總登記坪數:
    4. 每坪單價:
    5. 地址:台北市大安區新生南路三段4號8樓
    1. (煩請告知聯絡人,您是在House-Info房屋網看到廣告,感恩幫忙)
    2. 0911-965-339
    1. 公司名稱:
    2. 公司地址:
    新生南路三段 【星雲大廈】師大台大 龍門金華國中 大安公園-QR CODE 我要留言
物件介紹
詳細資料
銷售狀態
待標中
格局
0房
社區/大樓
屋齡
48年
無障礙環境
所在樓層
8樓/共14樓
管委會
中庭
沒有
電梯
邊間
不是
是否凶宅
不是
法拍屋
拍次
第一拍 點交
開標日期
2026/03/03(二) 14:30
瀏覽人次
1人次
周邊環境
鄰近學區
龍安國小,金華國中
坪數說明
建物登記總坪數
37.21
主建物
34.39
附屬建物
2.82
土地登記總坪數
3.98
特色描述

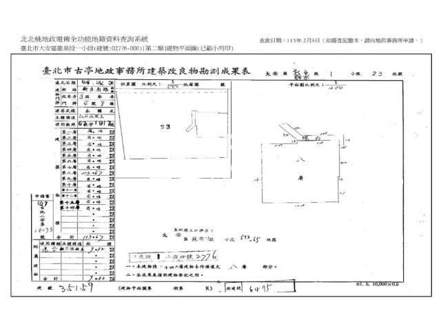
【法院筆錄內容】

1‧拍定後點交與否:本件係拍賣土地應有部分及建物全部,拍定後建物依現況點交。

2‧本件拍賣標的無他項權利設定。

3‧本件建物於114年12月11日查封時大門深鎖,無人應門,社區總幹事表示該屋已許多年無人居住。經入內檢視後,現況為空屋,格局為三房二廳二衛、一間儲藏室,屋內遺留大批家具、日常生活用品等物品。目視無增建,惟屋內有多處壁癌及牆面油漆脫落,且嚴重漏水,請應買人注意,依強制執行法第69條規定,拍賣物買受人就物之瑕疵無擔保請求權,拍定人不得於拍定後主張是項權利。

4‧本件拍賣標的,經向主管機關查詢結果,表示無海砂屋、輻射屋、建物內有非自然死亡、遭列管為地震受損建築物等足以影響交易之特殊情事,惟實際情形為何,仍請應買人自行查明,不得於拍定後主張瑕疵擔保請求權。

5‧本件採現場投標與通訊投標並行之方式,通訊投標應寄達日期:自公告日起至開標日前1日止。《法務部發文字號:北執廉113年地稅執字第00000471號/可通訊投標》

 

【保證金】
939萬

【拍賣履歴】
 一拍  2026/03/03     底標價格  4695萬
 二拍                        底標價格  3756萬
 三拍                        底標價格  3004.8萬
 四拍                        底標價格  2403.8萬                

【焦點法拍履歴】
👩🏻‍⚖️從業二十年以上經驗|競競業業|正派經營
🎯投標準備⇥法拍流程說明|標單填寫|案件現場勘查有無特殊情事|成本評估分析
💰銀行貸款⇥法拍物件估價|投標人財力評估|銀行代墊款協助辦理|最高八成
🏡拍定得標⇥強制執行書狀、履勘陳報書狀往返|債務人搬遷協商|遺留物造冊查估
🎁委託代標⇥免費|委託代標未得標⇥免費

🏢鑫創資產管理有限公司

顏麗杏 0911-965339   營業員證號:(101)登字第212862號     
連真甄 0909-031993   營業員證號:(101)登字第192002號   

更多物件 ☞ 焦點法拍 

經紀人李彥槿:109北市經證字第02110號

大安區大樓法拍-0
大安區大樓法拍-0
大安區大樓法拍-1
大安區大樓法拍-1
大安區大樓法拍-2
大安區大樓法拍-2
大安區大樓法拍-3
大安區大樓法拍-3
大安區大樓法拍-4
大安區大樓法拍-4
大安區大樓法拍-5
大安區大樓法拍-5
大安區大樓法拍-6
大安區大樓法拍-6
大安區大樓法拍-7
大安區大樓法拍-7
大安區大樓法拍-8
大安區大樓法拍-8
大安區大樓法拍-9
大安區大樓法拍-9
大安區大樓法拍-10
大安區大樓法拍-10
大安區大樓法拍-11
大安區大樓法拍-11
大安區大樓法拍-12
大安區大樓法拍-12
大安區大樓法拍-13
大安區大樓法拍-13
物件留言
請注意,如果您詢問的內容與物件不相符合或是廣告,經過審核,系統將會直接刪除您的發問內容
等待圖示
相似物件
免責聲明:House-Info房屋網平台系統為租用式開放房屋買賣網站建置平台,僅提供會員查詢-台北市,大安區,大樓-等房屋資訊參考,並不涉入任何諮詢、交易。 物件(服務)聯絡人公佈的資訊、文字、照片、圖形、產權、廣告內容、或其他資料若有不實或違法情事,或與客戶聯絡交易過程中若衍生民事或刑事等法律問題,皆與House-Info房屋網站無關,所有商標、文章、名稱等版權,皆歸屬原著作者所有!