台北松山大樓法拍

台北松山大樓法拍|松山區光復北路國林光復大樓

松山區 光復北路 【國林光復大樓】
列印
  • 售5840萬
    1. 案號:114黃18075 114/11/19 (三)14:30流標
    2. 類型:法拍大樓
    3. 總登記坪數:
    4. 每坪單價:
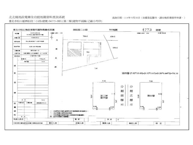
    5. 地址:台北市松山區光復北路35號4樓
    1. (煩請告知聯絡人,您是在House-Info房屋網看到廣告,感恩幫忙)
    2. 0911-965-339
    1. 公司名稱:
    2. 公司地址:
    松山區 光復北路 【國林光復大樓】-QR CODE 我要留言
物件介紹
詳細資料
銷售狀態
待標中
社區/大樓
屋齡
32年
車位
沒車位
無障礙環境
沒有
所在樓層
4樓/共12樓
管委會
電梯
邊間
是否凶宅
不是
法拍屋
拍次
第一拍 部份點交
開標日期
2025/11/19 (三) 14:30流標
瀏覽人次
44人次
坪數說明
建物登記總坪數
78.33
主建物
45.11
公共設施
33.22
土地登記總坪數
9.48
特色描述

【法院筆錄內容】

1‧4773、4779建號建物現場查封時債務人公司法定代理人在場稱為自用,無出租,無漏水,地震後有小裂痕,結構無受損,故本件拍定後點交。

2‧4386建號建物為地下二樓車位,車位係機械式(塔式),無固定車位,出入口位於一樓,拍定後不點交,雖係拍賣應有部分,因停車位為類似區分所有建物,可獨立使用,故建物共有人無優先承買權。

3‧拍賣標的經鑑價機關查相關主管機關後,並無發生非自然死亡情形,亦無發生過火災事件,亦非屬列管之海砂屋、輻射屋、地震受損屋,惟建物實際狀況仍須經專業人員辦理相關鑑定及偵測始能確認是否為海砂屋、有無輻射、有無地震受創,應由拍定人自行查明,請應買人注意。

《拍賣抵押物》

【保證金】
1168萬

【拍賣履歴】
 一拍    2025/11/19 流標  底標價格  5840萬
 二拍                             底標價格  4672萬
 三拍                             底標價格  3737.6萬
 四拍                             底標價格  2990.1萬                

【焦點法拍履歴】
👩🏻‍⚖️從業二十年以上經驗|競競業業|正派經營
🎯投標準備⇥法拍流程說明|標單填寫|案件現場勘查有無特殊情事|成本評估分析
💰銀行貸款⇥法拍物件估價|投標人財力評估|銀行代墊款協助辦理|最高八成
🏡拍定得標⇥強制執行書狀、履勘陳報書狀往返|債務人搬遷協商|遺留物造冊查估
🎁委託代標⇥免費|委託代標未得標⇥免費

🏢鑫創資產管理有限公司

顏麗杏 0911-965339   營業員證號:(101)登字第212862號     
連真甄 0909-031993   營業員證號:(101)登字第192002號   

更多物件 ☞ 焦點法拍 

經紀人李彥槿:109北市經證字第02110號

松山大樓法拍-0
松山大樓法拍-0
松山大樓法拍-1
松山大樓法拍-1
松山大樓法拍-2
松山大樓法拍-2
松山大樓法拍-3
松山大樓法拍-3
松山大樓法拍-4
松山大樓法拍-4
松山大樓法拍-5
松山大樓法拍-5
松山大樓法拍-6
松山大樓法拍-6
松山大樓法拍-7
松山大樓法拍-7
松山大樓法拍-8
松山大樓法拍-8
松山大樓法拍-9
松山大樓法拍-9
松山大樓法拍-10
松山大樓法拍-10
物件留言
請注意,如果您詢問的內容與物件不相符合或是廣告,經過審核,系統將會直接刪除您的發問內容
等待圖示
相似物件
免責聲明:House-Info房屋網平台系統為租用式開放房屋買賣網站建置平台,僅提供會員查詢-台北市,松山區,大樓-等房屋資訊參考,並不涉入任何諮詢、交易。 物件(服務)聯絡人公佈的資訊、文字、照片、圖形、產權、廣告內容、或其他資料若有不實或違法情事,或與客戶聯絡交易過程中若衍生民事或刑事等法律問題,皆與House-Info房屋網站無關,所有商標、文章、名稱等版權,皆歸屬原著作者所有!