台北市松山區大樓法拍

台北市松山區大樓法拍|松山區南京東路五段愛琴海大廈捷運南京三民站

松山區 南京東路五段 【愛琴海大廈】捷運南京三民站
列印
  • 售1650萬
    1. 案號:114司執平17810 114/12/11(四)9:30撤回
    2. 類型:法拍大樓
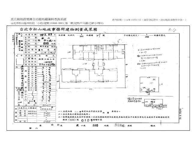
    3. 總登記坪數:
    4. 每坪單價:
    5. 地址:台北市松山區南京東路五段40號8樓-4
    1. (煩請告知聯絡人,您是在House-Info房屋網看到廣告,感恩幫忙)
    2. 0911-965-339
    1. 公司名稱:
    2. 公司地址:
    松山區 南京東路五段 【愛琴海大廈】捷運南京三民站-QR CODE 我要留言
物件介紹
詳細資料
銷售狀態
議價中
格局
0房
社區/大樓
屋齡
35年
無障礙環境
所在樓層
8樓/共19樓
管委會
中庭
電梯
法拍屋
拍次
第一拍 點交
開標日期
2025/12/11(四) 09:30 撤回
瀏覽人次
118人次
周邊環境
捷運站
南京三民
坪數說明
建物登記總坪數
13.87
主建物
9.70
附屬建物
1.31
公共設施
2.86
土地登記總坪數
1.14
特色描述

【法院筆錄內容】

1‧3686建號由債務人及其家屬自住,故拍定後點交。

《損害賠償》

【保證金】
330萬

【拍賣履歴】
 一拍    2025/12/11  撤回  底標價格  1650萬
 二拍                              底標價格  1320萬
 三拍                              底標價格  1056萬
 四拍                              底標價格  844.8萬                

【焦點法拍履歴】
👩🏻‍⚖️從業二十年以上經驗|競競業業|正派經營
🎯投標準備⇥法拍流程說明|標單填寫|案件現場勘查有無特殊情事|成本評估分析
💰銀行貸款⇥法拍物件估價|投標人財力評估|銀行代墊款協助辦理|最高八成
🏡拍定得標⇥強制執行書狀、履勘陳報書狀往返|債務人搬遷協商|遺留物造冊查估
🎁委託代標⇥免費|委託代標未得標⇥免費

🏢鑫創資產管理有限公司

顏麗杏 0911-965339   營業員證號:(101)登字第212862號     
連真甄 0909-031993   營業員證號:(101)登字第192002號   

更多物件 ☞ 焦點法拍 

經紀人李彥槿:109北市經證字第02110號

松山大樓法拍-0
松山大樓法拍-0
松山大樓法拍-1
松山大樓法拍-1
松山大樓法拍-2
松山大樓法拍-2
松山大樓法拍-3
松山大樓法拍-3
松山大樓法拍-4
松山大樓法拍-4
松山大樓法拍-5
松山大樓法拍-5
物件留言
請注意,如果您詢問的內容與物件不相符合或是廣告,經過審核,系統將會直接刪除您的發問內容
等待圖示
相似物件
免責聲明:House-Info房屋網平台系統為租用式開放房屋買賣網站建置平台,僅提供會員查詢-台北市,松山區,大樓-等房屋資訊參考,並不涉入任何諮詢、交易。 物件(服務)聯絡人公佈的資訊、文字、照片、圖形、產權、廣告內容、或其他資料若有不實或違法情事,或與客戶聯絡交易過程中若衍生民事或刑事等法律問題,皆與House-Info房屋網站無關,所有商標、文章、名稱等版權,皆歸屬原著作者所有!