台北大樓法拍

台北大樓法拍|士林區忠勇街郭氏林氏大樓雙車位福志公園

士林區 忠勇街 【郭氏林氏大樓】雙車位 福志公園
列印
  • 售6000萬
    1. 案號:114強36522 114/12/22(一)14:30流標
    2. 類型:法拍大樓
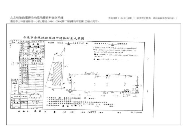
    3. 總登記坪數:
    4. 每坪單價:
    5. 地址:台北市士林區忠勇街40巷4弄1號7樓
    1. (煩請告知聯絡人,您是在House-Info房屋網看到廣告,感恩幫忙)
    2. 0911-965-339
    1. 公司名稱:
    2. 公司地址:
    士林區 忠勇街 【郭氏林氏大樓】雙車位 福志公園-QR CODE 我要留言
物件介紹
詳細資料
銷售狀態
議價中
社區/大樓
屋齡
21年
車位
有2車位
無障礙環境
所在樓層
7樓/共8樓
中庭
沒有
電梯
邊間
是否凶宅
不是
法拍屋
拍次
第二拍 點交
開標日期
2025/12/22(一)14:30流標
瀏覽人次
33人次
坪數說明
建物登記總坪數
120.43
主建物
66.18
附屬建物
7.53
公共設施
46.72
土地登記總坪數
32.37
特色描述

【法院筆錄內容】

1‧10841建號拍定後,如租約已屆期則點交。

2‧民國114年5月27日現場查封時,債務人在場稱建物出租他人,並提出租賃契約影本附卷,租賃期間自113年3月15日起至115年3月14日止,月租金17萬元。停車位為編號3號及4號,實際為一個機械停車位,因係拍賣共有部分,應由全體區分所有權人協議使用分管方法,故停車位不點交。惟現在實際情形如何,仍請應買人自行查明注意。

3‧投標人應自行查明債務人有無積欠管理費,並注意拍定後民法第826條之1第3項規定之適用問題。

《清償債務》

【保證金】
1200萬

【拍賣履歴】
 一拍    2025/10/27  流標   底標價格  7500萬
 二拍    2025/12/22  流標   底標價格  6000萬
 三拍                                底標價格  4800萬
 四拍                                底標價格  3840萬                

【焦點法拍履歴】
👩🏻‍⚖️從業二十年以上經驗|競競業業|正派經營
🎯投標準備⇥法拍流程說明|標單填寫|案件現場勘查有無特殊情事|成本評估分析
💰銀行貸款⇥法拍物件估價|投標人財力評估|銀行代墊款協助辦理|最高八成
🏡拍定得標⇥強制執行書狀、履勘陳報書狀往返|債務人搬遷協商|遺留物造冊查估
🎁委託代標⇥免費|委託代標未得標⇥免費

🏢鑫創資產管理有限公司

顏麗杏 0911-965339   營業員證號:(101)登字第212862號     
連真甄 0909-031993   營業員證號:(101)登字第192002號   

更多物件 ☞ 焦點法拍 

經紀人李彥槿:109北市經證字第02110號

台北法拍大樓-0
台北法拍大樓-0
台北法拍大樓-1
台北法拍大樓-1
台北法拍大樓-2
台北法拍大樓-2
台北法拍大樓-3
台北法拍大樓-3
台北法拍大樓-4
台北法拍大樓-4
台北法拍大樓-5
台北法拍大樓-5
台北法拍大樓-6
台北法拍大樓-6
台北法拍大樓-7
台北法拍大樓-7
台北法拍大樓-8
台北法拍大樓-8
台北法拍大樓-9
台北法拍大樓-9
台北法拍大樓-10
台北法拍大樓-10
物件留言
請注意,如果您詢問的內容與物件不相符合或是廣告,經過審核,系統將會直接刪除您的發問內容
等待圖示
相似物件
免責聲明:House-Info房屋網平台系統為租用式開放房屋買賣網站建置平台,僅提供會員查詢-台北市,士林區,大樓-等房屋資訊參考,並不涉入任何諮詢、交易。 物件(服務)聯絡人公佈的資訊、文字、照片、圖形、產權、廣告內容、或其他資料若有不實或違法情事,或與客戶聯絡交易過程中若衍生民事或刑事等法律問題,皆與House-Info房屋網站無關,所有商標、文章、名稱等版權,皆歸屬原著作者所有!