八里區透天法拍

八里區透天法拍|八里區賢一街家麗堡透天近13行博物館64快渡船頭

八里區賢一街【家麗堡】透天|近13行博物館、64快、渡船頭
列印
  • 售1800萬
    售1440萬
    1. 案號:113職四129金 114/11/5(三) 拍定1488萬
    2. 類型:法拍透天
    3. 總登記坪數:
    4. 每坪單價:
    5. 地址:新北市八里區賢一街69號
    1. (煩請告知聯絡人,您是在House-Info房屋網看到廣告,感恩幫忙)
    2. 0911-965-339
    1. 公司名稱:
    2. 公司地址:
    八里區賢一街【家麗堡】透天|近13行博物館、64快、渡船頭-QR CODE 我要留言
物件介紹
詳細資料
銷售狀態
已成交
格局
0房
社區/大樓
屋齡
18年
無障礙環境
沒有
管委會
中庭
沒有
電梯
未知
邊間
法拍屋
拍次
第3拍 部分點交
開標日期
2025/11/5 (三) 10:30 拍定1488萬
瀏覽人次
35人次
周邊環境
鄰近地標
近十三行博物館、八里渡船頭老街、台北港、64快速道路、61快速道路
坪數說明
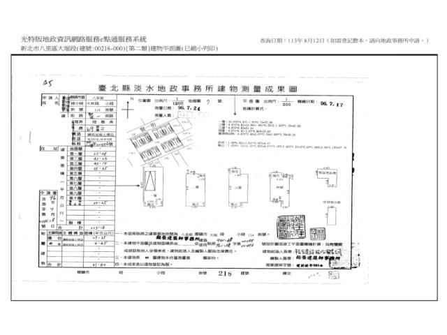
建物登記總坪數
71.08
主建物
61.64
附屬建物
9.62
土地登記總坪數
30.3
特色描述

【法院筆錄內容】

1‧218建號建物拍定後點交。114地號土地拍賣不動產應有部分,查無債務人現實占有部分,拍定後不點交。

2‧114年4月16日現場查封指界時,債務人兒子在場稱目前為其單獨居住,惟現在實際情如何,仍請應買人自行查明注意。

3‧以上不動產分別標價,合併拍賣,以總價最高者得標。《法院案號:士林地方法院案號:114年度司執吉字第16770號,清償票款》

【保證金】
288萬

【拍賣履歴】
 一拍    2025/09/24 流標 底標價格  2250萬
 二拍    2025/10/15  流標 底標價格  1800 萬
 三拍    2025/11/05         底標價格  1440 萬 拍定1488萬
 四拍                              底標價格  1152 萬                

【焦點法拍履歴】
👩🏻‍⚖️從業二十年以上經驗|競競業業|正派經營
🎯投標準備⇥法拍流程說明|標單填寫|案件現場勘查有無特殊情事|成本評估分析
💰銀行貸款⇥法拍物件估價|投標人財力評估|銀行代墊款協助辦理|最高八成
🏡拍定得標⇥強制執行書狀、履勘陳報書狀往返|債務人搬遷協商|遺留物造冊查估
🎁委託代標⇥免費|委託代標未得標⇥免費

🏢鑫創資產管理有限公司

顏麗杏 0911-965339   營業員證號:(101)登字第212862號     
連真甄 0909-031993   營業員證號:(101)登字第192002號   

更多物件 ☞ 焦點法拍 

經紀人李彥槿:109北市經證字第02110號

八里法拍透天-0
八里法拍透天-0
八里法拍透天-1
八里法拍透天-1
八里法拍透天-2
八里法拍透天-2
八里法拍透天-3
八里法拍透天-3
八里法拍透天-4
八里法拍透天-4
八里法拍透天-5
八里法拍透天-5
八里法拍透天-6
八里法拍透天-6
八里法拍透天-7
八里法拍透天-7
物件留言
請注意,如果您詢問的內容與物件不相符合或是廣告,經過審核,系統將會直接刪除您的發問內容
等待圖示
免責聲明:House-Info房屋網平台系統為租用式開放房屋買賣網站建置平台,僅提供會員查詢-新北市,八里區,透天-等房屋資訊參考,並不涉入任何諮詢、交易。 物件(服務)聯絡人公佈的資訊、文字、照片、圖形、產權、廣告內容、或其他資料若有不實或違法情事,或與客戶聯絡交易過程中若衍生民事或刑事等法律問題,皆與House-Info房屋網站無關,所有商標、文章、名稱等版權,皆歸屬原著作者所有!