淡水大樓法拍

淡水大樓法拍|淡水區中山北路二段川普寬庭淡水行政中心輕軌區公所站

淡水區中山北路二段【川普寬庭】淡水行政中心、輕軌區公所站
列印
  • 售1178萬
    1. 案號:114實36893二114/10/15(三)14:30流標
    2. 類型:法拍大樓
    3. 總登記坪數:
    4. 每坪單價:
    5. 地址:新北市淡水區中山北路二段189巷15弄8號4樓
    1. (煩請告知聯絡人,您是在House-Info房屋網看到廣告,感恩幫忙)
    2. 0911-965-339
    1. 公司名稱:
    2. 公司地址:
    淡水區中山北路二段【川普寬庭】淡水行政中心、輕軌區公所站-QR CODE 我要留言
物件介紹
詳細資料
銷售狀態
議價中
格局
0房
社區/大樓
屋齡
9年
無障礙環境
所在樓層
4樓/共14樓
管委會
電梯
邊間
不是
法拍屋
拍次
第1拍 部分點交
開標日期
2025/10/15 (三) 14:30流標
瀏覽人次
23人次
周邊環境
鄰近地標
近輕軌淡水行政中心站、淡水行政中心、國民運動中心、新市鎮兒童公園、家樂福
公園綠地
淡水新市鎮兒童公園
捷運站
淡水區公所
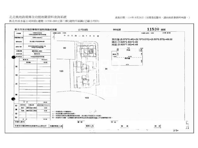
坪數說明
建物登記總坪數
39.68
主建物
14.98
附屬建物
3.14
公共設施
8.57
停車位
12.99
土地登記總坪數
6.58
特色描述

【法院筆錄內容】

1‧11530建號(不含停車位)拍定後點交。

2‧民國114年5月13日現場查封時,據社區總幹事表示房屋及地下3層33號停車位均無人使用。停車位係拍賣共有部分,應由全體區分所有權人協議使用分管方法,故該部分不點交。惟現在實際情形如何,仍請應買人自行查明注意。

3‧投標人應自行查明債務人有無積欠管理費,並注意拍定後民法第826條之1第3項規定之適用問題。

《拍賣抵押物》

【保證金】
235.6萬

【拍賣履歴】
 一拍    2025/10/15 流標   底標價格  1178萬
 二拍                              底標價格  942.4萬
 三拍                              底標價格  753.9萬
 四拍                              底標價格  603.1萬                

【焦點法拍履歴】
👩🏻‍⚖️從業二十年以上經驗|競競業業|正派經營
🎯投標準備⇥法拍流程說明|標單填寫|案件現場勘查有無特殊情事|成本評估分析
💰銀行貸款⇥法拍物件估價|投標人財力評估|銀行代墊款協助辦理|最高八成
🏡拍定得標⇥強制執行書狀、履勘陳報書狀往返|債務人搬遷協商|遺留物造冊查估
🎁委託代標⇥免費|委託代標未得標⇥免費

🏢鑫創資產管理有限公司

顏麗杏 0911-965339   營業員證號:(101)登字第212862號     
連真甄 0909-031993   營業員證號:(101)登字第192002號   

更多物件 ☞ 焦點法拍 

經紀人李彥槿:109北市經證字第02110號

新北淡水拍賣大樓-0
新北淡水拍賣大樓-0
新北淡水拍賣大樓-1
新北淡水拍賣大樓-1
新北淡水拍賣大樓-2
新北淡水拍賣大樓-2
新北淡水拍賣大樓-3
新北淡水拍賣大樓-3
新北淡水拍賣大樓-4
新北淡水拍賣大樓-4
新北淡水拍賣大樓-5
新北淡水拍賣大樓-5
新北淡水拍賣大樓-6
新北淡水拍賣大樓-6
新北淡水拍賣大樓-7
新北淡水拍賣大樓-7
新北淡水拍賣大樓-8
新北淡水拍賣大樓-8
新北淡水拍賣大樓-9
新北淡水拍賣大樓-9
新北淡水拍賣大樓-10
新北淡水拍賣大樓-10
物件留言
請注意,如果您詢問的內容與物件不相符合或是廣告,經過審核,系統將會直接刪除您的發問內容
等待圖示
相似物件
免責聲明:House-Info房屋網平台系統為租用式開放房屋買賣網站建置平台,僅提供會員查詢-新北市,淡水區,大樓-等房屋資訊參考,並不涉入任何諮詢、交易。 物件(服務)聯絡人公佈的資訊、文字、照片、圖形、產權、廣告內容、或其他資料若有不實或違法情事,或與客戶聯絡交易過程中若衍生民事或刑事等法律問題,皆與House-Info房屋網站無關,所有商標、文章、名稱等版權,皆歸屬原著作者所有!