板橋區公寓法拍

板橋區公寓法拍|板橋區民治街公寓三樓近懷石公園文聖國小

板橋區民治街|公寓三樓|近懷石公園、文聖國小
列印
  • 售1965萬
    售1572萬
    1. 案號:114速19813 114/10/22(三) 14:30
    2. 類型:法拍公寓
    3. 總登記坪數:
    4. 每坪單價:
    5. 地址:新北市板橋區民治街72號3樓
    1. (煩請告知聯絡人,您是在House-Info房屋網看到廣告,感恩幫忙)
    2. 0911-965-339
    1. 公司名稱:
    2. 公司地址:
    板橋區民治街|公寓三樓|近懷石公園、文聖國小-QR CODE 我要留言
物件介紹
詳細資料
銷售狀態
待標中
格局
0房
屋齡
50年以上
車位
沒車位
無障礙環境
沒有
所在樓層
3樓/共4樓
管委會
沒有
中庭
沒有
電梯
沒有
邊間
不是
法拍屋
拍次
第2拍 點交
開標日期
2025/10/22(三) 14:30
瀏覽人次
24人次
周邊環境
鄰近地標
捷運江子翠站、江翠重劃區、華江橋、華江河濱公園
捷運站
江子翠
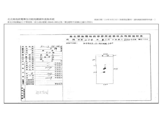
坪數說明
建物登記總坪數
33.39
主建物
31.37
附屬建物
2.02
土地登記總坪數
12.25
特色描述

【法院筆錄內容】

1‧拍賣標的經本院現場查封履勘時,債務人李O芳在場表示:建物由債務人簡O梅與其共同居住,並無出租、增建等情。本件除應有部分於拍定後不點交外,建物於拍定後點交。

2‧本件標的經函詢新北市政府工務局,該局表示截至114年4月9日止,新北市海砂屋申請報備案件清冊中尚無本件標的之申請資料,故本件標的是否為海砂屋,建請洽專業機構人員辦理相關鑑定為宜,特別請應買人自行查明注意。

3‧關於海砂屋及輻射屋之判定、建物是否受地震受創、火災受損、嚴重漏水,均須由相關權利人請相關單位鑑定,另建物是否有非自然死亡之情形,其實際情形亦須由相關權利人查詢當地管轄派出所,並以專業鑑定機構及相關公部門發佈為主。是本註記僅供參考,並請應買人於投標或應買前均自行查明確認上情,再為投標或應買。

4‧本件標的物原所有權人或使用人如有積欠工程受益費、水電、瓦斯、管理費等相關費用,應由拍定人自行查明後與相關單位洽商解決。

5‧本件標的土地如經地政機關實施重測或其他行為致面積增減,因該重測並無增減私權效力,是重測前後土地之同一性及其實體私權關係並未變更,其面積以重測結果為準,拍定後債權人、債務人、拍定人或其他利害關係人均不得以面積增減請求增減價金或撤銷拍定。

6‧本件若於拍定前,已有債權人之撤回狀送達本院而生撤回效力或有其他應停止執行之裁定,惟因公文遞送流程之故無法即時審查,本院仍得於拍定後撤銷拍定,保證金無息退還,拍定人不得異議。

7‧刊登於網站之公告內容如與本院公告欄張貼之公告內容不符時,一律以本院公告欄張貼之拍賣公告內容為準。

《清償票款》

【保證金】
314.4萬

【拍賣履歴】
 一拍    2025/09/24 流標   底標價格  1965萬
 二拍    2025/10/22          底標價格  1572萬
 三拍                               底標價格  1257.2萬
 四拍                               底標價格  1006.1萬                

【焦點法拍履歴】
👩🏻‍⚖️從業二十年以上經驗|競競業業|正派經營
🎯投標準備⇥法拍流程說明|標單填寫|案件現場勘查有無特殊情事|成本評估分析
💰銀行貸款⇥法拍物件估價|投標人財力評估|銀行代墊款協助辦理|最高八成
🏡拍定得標⇥強制執行書狀、履勘陳報書狀往返|債務人搬遷協商|遺留物造冊查估
🎁委託代標⇥免費|委託代標未得標⇥免費

🏢鑫創資產管理有限公司

顏麗杏 0911-965339   營業員證號:(101)登字第212862號     
連真甄 0909-031993   營業員證號:(101)登字第192002號   

更多物件 ☞ 焦點法拍 

經紀人李彥槿:109北市經證字第02110號

板橋拍賣公寓-0
板橋拍賣公寓-0
板橋拍賣公寓-1
板橋拍賣公寓-1
板橋拍賣公寓-2
板橋拍賣公寓-2
板橋拍賣公寓-3
板橋拍賣公寓-3
板橋拍賣公寓-4
板橋拍賣公寓-4
板橋拍賣公寓-5
板橋拍賣公寓-5
板橋拍賣公寓-6
板橋拍賣公寓-6
板橋拍賣公寓-7
板橋拍賣公寓-7
板橋拍賣公寓-8
板橋拍賣公寓-8
板橋拍賣公寓-9
板橋拍賣公寓-9
物件留言
請注意,如果您詢問的內容與物件不相符合或是廣告,經過審核,系統將會直接刪除您的發問內容
等待圖示
相似物件
免責聲明:House-Info房屋網平台系統為租用式開放房屋買賣網站建置平台,僅提供會員查詢-新北市,板橋區,公寓-等房屋資訊參考,並不涉入任何諮詢、交易。 物件(服務)聯絡人公佈的資訊、文字、照片、圖形、產權、廣告內容、或其他資料若有不實或違法情事,或與客戶聯絡交易過程中若衍生民事或刑事等法律問題,皆與House-Info房屋網站無關,所有商標、文章、名稱等版權,皆歸屬原著作者所有!